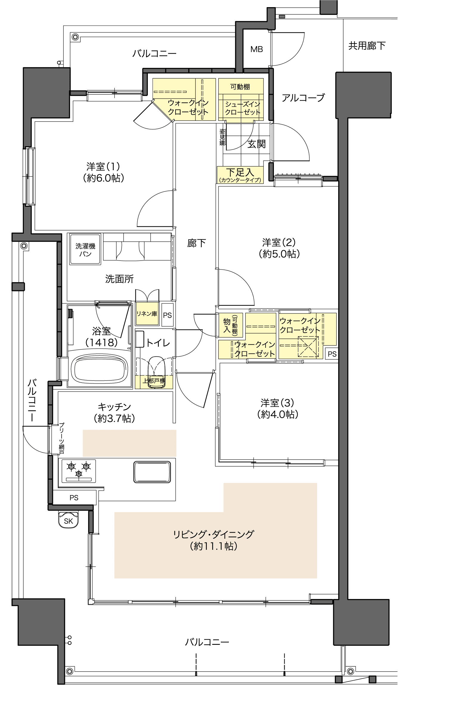
Atype

3LDK+3WIC+SIC

住居専有面積/70.87㎡[21.43坪]

アルコーブ面積/6.08㎡[1.83坪]
バルコニー面積/25.64㎡[7.75坪]
MB面積/0.70㎡[0.21坪]

合計面積/103.29㎡[31.22坪]

A type
Aタイプ完成予想図

Aタイプ完成予想図

A type

床暖房範囲

収納

WIC:ウォークインクローゼット SIC:シューズインクローゼット
※掲載の間取りは設計段階のものであり、今後変更になる場合があります。